Garlin - Maison 17 pièce(s)
Mandat n°2793
Votre agent commercial
Appeler
EM
Votre agence immobilière
Financez votre projet
1. J'emprunte 312 000€
Financez votre bien avec notre service de courtage !
Garlin
312 000€ HAI*
Honoraires à la charge du vendeur
Être rappelé
Envoyer un message
Faire une offre
Visiter le bien
Caractéristiques
-
Surface 400m²
-
Parking 20
-
Garage 3
-
Nombre de pièces 17
-
Nombre de chambres 9
-
Nombre de salles d'eau 7
-
Nombre de WC 8
Performance énergétique
A
B
C
D
E
F
G
Performance climatique
A
B
C
D
E
F
G
Description
Ensemble Immobilier de 400 m² – Ancien Hôtel-Restaurant
Au cœur d’un village paisible, à la frontière du Gers et des Pyrénées-Atlantiques
Situé dans un environnement touristique recherché, cet ancien hôtel-restaurant offre un potentiel rare pour un projet d’investissement ou de réhabilitation. Entre vignobles du Madiran et coteaux du Béarn, vous profiterez d’un cadre idéal pour accueillir une clientèle en quête de nature, de patrimoine et de sérénité. À proximité, bastides, châteaux, dégustations de vins, mais aussi le circuit automobile d’Aydie… le tout à seulement 1h de Pau et de Mont-de-Marsan.
Description du bien
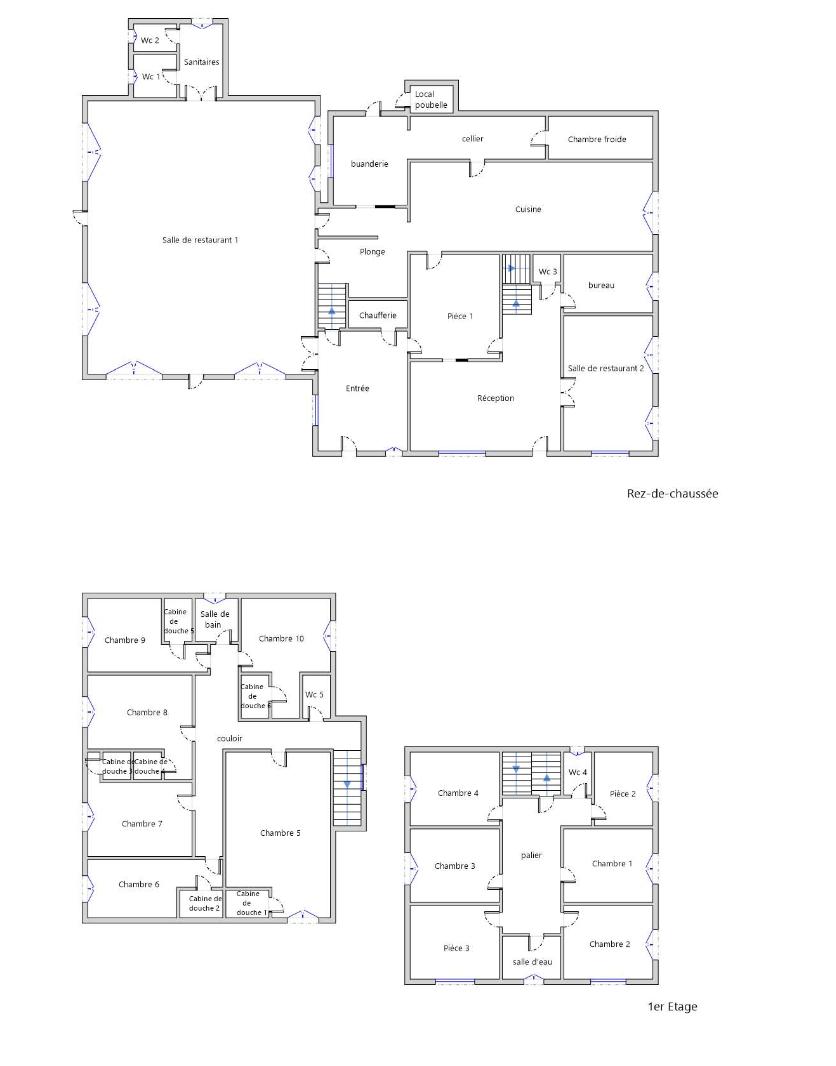
Rez-de-chaussée : vaste entrée, deux salles de restaurant, bureau, espace sanitaires, une chambre, cuisines équipées avec chambre froide, buanderie.
Étage (partie I) : 6 chambres, salle d’eau, WC.
Étage (partie II) : 6 chambres avec salle d’eau/WC privatifs, plus salle d’eau et WC communs sur le palier.
Extérieurs et annexes
Grande terrasse carrelée, jardin (bornage en cours de validation).
Deux hangars sécurisés avec portes séquentielles + abri attenant.
Cour et parking goudronnés, portail électrique.
Vue dégagée sur les coteaux du Béarn.
Atouts supplémentaires
Écoles et transports scolaires à proximité.
Secteur calme, cadre verdoyant
Un grand parking
Idéal pour : investisseurs, marchands de biens ou porteurs de projet souhaitant redonner vie à un établissement de caractère (hôtellerie, restauration, chambres d’hôtes, séminaires, événementiel, ...).
Une opportunité unique dans un cadre privilégié, à découvrir sans tarder !
Au cœur d’un village paisible, à la frontière du Gers et des Pyrénées-Atlantiques
Situé dans un environnement touristique recherché, cet ancien hôtel-restaurant offre un potentiel rare pour un projet d’investissement ou de réhabilitation. Entre vignobles du Madiran et coteaux du Béarn, vous profiterez d’un cadre idéal pour accueillir une clientèle en quête de nature, de patrimoine et de sérénité. À proximité, bastides, châteaux, dégustations de vins, mais aussi le circuit automobile d’Aydie… le tout à seulement 1h de Pau et de Mont-de-Marsan.
Description du bien
Rez-de-chaussée : vaste entrée, deux salles de restaurant, bureau, espace sanitaires, une chambre, cuisines équipées avec chambre froide, buanderie.
Étage (partie I) : 6 chambres, salle d’eau, WC.
Étage (partie II) : 6 chambres avec salle d’eau/WC privatifs, plus salle d’eau et WC communs sur le palier.
Extérieurs et annexes
Grande terrasse carrelée, jardin (bornage en cours de validation).
Deux hangars sécurisés avec portes séquentielles + abri attenant.
Cour et parking goudronnés, portail électrique.
Vue dégagée sur les coteaux du Béarn.
Atouts supplémentaires
Écoles et transports scolaires à proximité.
Secteur calme, cadre verdoyant
Un grand parking
Idéal pour : investisseurs, marchands de biens ou porteurs de projet souhaitant redonner vie à un établissement de caractère (hôtellerie, restauration, chambres d’hôtes, séminaires, événementiel, ...).
Une opportunité unique dans un cadre privilégié, à découvrir sans tarder !
Annonce mise à jour le mardi 16 décembre 2025 à 03:44
