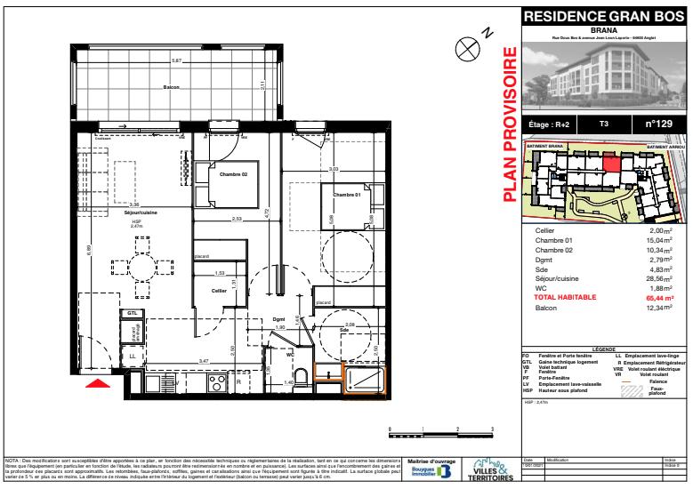
Appartement 3 pièces
Mandat n°1875
Vendu
Votre agent commercial
Appeler
PP
Pauline POUYANNE
Votre agence immobilière
Financez votre projet
1. J'emprunte 0€
Financez votre bien avec notre service de courtage !
Anglet
Être rappelé
Envoyer un message
Faire une offre
Visiter le bien
Caractéristiques
-
Surface 64.77m²
-
Parking 1
-
Charges copro 78€ par mois
-
Séjour 28.56m²
-
Terrasse 12.34m²
-
Nombre de pièces 3
-
Nombre de chambres 2
-
Nombre de salles d'eau 1
-
Nombre de WC 1
-
Cave/Cellier 2m²
Performance énergétique
Vierge
Performance climatique
Vierge
Description
Sur la commune d'Anglet, cet appartement de 64,77m2 se compose de 2chambre une cuisine ouverte sur salon/séjour, une terrasse et une place de parking.
Cuisine inclus dans le prix du bien.
Eligible PINEL
Prix 316 000 €
Honoraires charges vendeur
Cuisine inclus dans le prix du bien.
Eligible PINEL
Prix 316 000 €
Honoraires charges vendeur
Annonce mise à jour le mercredi 25 mai 2022 à 08:11
