Garlin - Ancien Hotel Restaurant renové
Mandat n°2819
Votre agent commercial
Appeler
EM
Votre agence immobilière
Financez votre projet
1. J'emprunte 249 800€
Financez votre bien avec notre service de courtage !
Garlin
249 800€ HAI*
* Honoraires agence inclus
Honoraires à la charge de l'acquéreur :
4.96% soit
11 800€ TTC
Être rappelé
Envoyer un message
Faire une offre
Visiter le bien
Caractéristiques
-
Surface 400m²
-
Parking 20
-
Garage 3
-
Nombre de pièces 17
-
Nombre de chambres 9
-
Nombre de salles d'eau 7
-
Nombre de WC 8
-
Taxe foncière 1386€
Performance énergétique
A
B
C
D
E
F
G
Performance climatique
A
B
C
D
E
F
G
Description
Et si votre prochain projet immobilier devenait un véritable projet de vie ?
Au cœur d’un village paisible, entre les vignobles du Madiran et les coteaux du Béarn,
Ancien Hôtel-Restaurant d’environ 400 m² offrant une base solide pour développer une activité de chambres d’hôtes, gîte ou location saisonnière, tout en profitant d’un environnement naturel et d’un attrait touristique reconnu.
Descriptif :
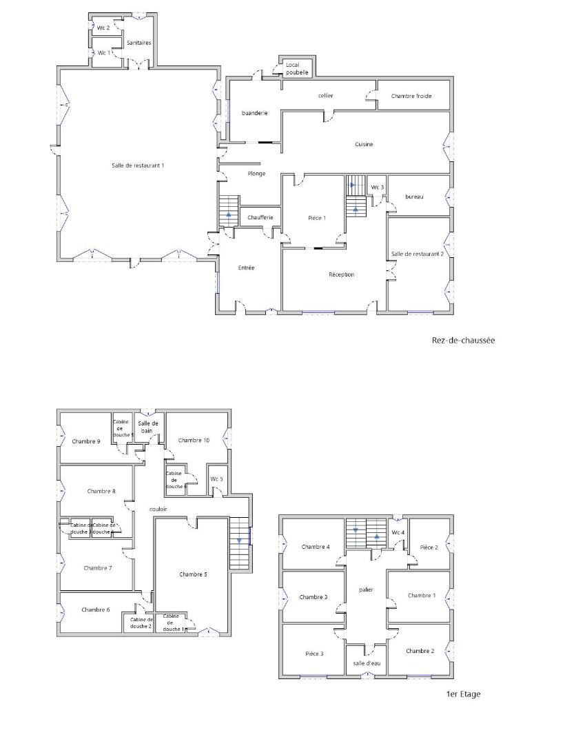
Rez-de-chaussée :
Vaste entrée, deux salles de réception / restaurant, bureau, sanitaires, cuisine professionnelle avec chambre froide, buanderie.
À l’étage :
Deux escaliers indépendants desservent les espaces nuit,
- 1er escalier : 6 chambres avec salle d’eau et WC communs
- 2ème escalier : 6 chambres avec salle d’eau & WC privatifs + sanitaires sur le palier
Extérieurs :
- Grande terrasse carrelée, Cour goudronnée
- Jardin sans vis-à-vis,
- Vue dégagée sur les coteaux du Béarn
- Grand parking goudronné, facilitant l’accueil de la clientèle
- 2 beaux hangars sécurisés avec portes séquentielles
- Abri attenant
- Portail électrique
Éléments techniques :
Menuiseries en double vitrage, Volets roulants, Assainissement individuel aux normes, Diagnostics corrects, DPE : D, Chauffage central au Gaz, Réseaux et installations fonctionnels, Jardin sans vis-à-vis
Un bâti sain, entretenu et fonctionnel bénéficiant de rénovations récentes et permettant d’envisager une reprise d’activité ou un nouveau projet sans lourds travaux structurels.
LES PLUS :
- Cadre naturel verdoyant et reposant,
- Vue ouverte sur les coteaux du Béarn,
- Secteur touristique recherché (bastides, châteaux, œnotourisme (Madiran), randonnées, patrimoine local..),
- Proximité du circuit automobile d’Aydie, générateur de fréquentation,
- À environ 1h de Pau et de Mont-de-Marsan,
- Écoles et transports scolaires à proximité, à 15mn de toutes commodités et pole de santé
- Un lieu déjà pensé pour accueillir, vivre et entreprendre
IDEAL pour :
- une Reconversion professionnelle ou changement de rythme,
- un Projet touristique ou d’accueil à taille humaine,
- un équilibre entre activité professionnelle et qualité de vie,
- des Amoureux d’un lieu authentique, fonctionnel et porteur de sens.
Un ensemble rare, prêt à écrire une nouvelle histoire.
Envie d’en savoir plus ou de programmer une visite ?
Au cœur d’un village paisible, entre les vignobles du Madiran et les coteaux du Béarn,
Ancien Hôtel-Restaurant d’environ 400 m² offrant une base solide pour développer une activité de chambres d’hôtes, gîte ou location saisonnière, tout en profitant d’un environnement naturel et d’un attrait touristique reconnu.
Descriptif :
Rez-de-chaussée :
Vaste entrée, deux salles de réception / restaurant, bureau, sanitaires, cuisine professionnelle avec chambre froide, buanderie.
À l’étage :
Deux escaliers indépendants desservent les espaces nuit,
- 1er escalier : 6 chambres avec salle d’eau et WC communs
- 2ème escalier : 6 chambres avec salle d’eau & WC privatifs + sanitaires sur le palier
Extérieurs :
- Grande terrasse carrelée, Cour goudronnée
- Jardin sans vis-à-vis,
- Vue dégagée sur les coteaux du Béarn
- Grand parking goudronné, facilitant l’accueil de la clientèle
- 2 beaux hangars sécurisés avec portes séquentielles
- Abri attenant
- Portail électrique
Éléments techniques :
Menuiseries en double vitrage, Volets roulants, Assainissement individuel aux normes, Diagnostics corrects, DPE : D, Chauffage central au Gaz, Réseaux et installations fonctionnels, Jardin sans vis-à-vis
Un bâti sain, entretenu et fonctionnel bénéficiant de rénovations récentes et permettant d’envisager une reprise d’activité ou un nouveau projet sans lourds travaux structurels.
LES PLUS :
- Cadre naturel verdoyant et reposant,
- Vue ouverte sur les coteaux du Béarn,
- Secteur touristique recherché (bastides, châteaux, œnotourisme (Madiran), randonnées, patrimoine local..),
- Proximité du circuit automobile d’Aydie, générateur de fréquentation,
- À environ 1h de Pau et de Mont-de-Marsan,
- Écoles et transports scolaires à proximité, à 15mn de toutes commodités et pole de santé
- Un lieu déjà pensé pour accueillir, vivre et entreprendre
IDEAL pour :
- une Reconversion professionnelle ou changement de rythme,
- un Projet touristique ou d’accueil à taille humaine,
- un équilibre entre activité professionnelle et qualité de vie,
- des Amoureux d’un lieu authentique, fonctionnel et porteur de sens.
Un ensemble rare, prêt à écrire une nouvelle histoire.
Envie d’en savoir plus ou de programmer une visite ?
Annonce mise à jour le mercredi 31 décembre 2026 à 14:22
